Ramshorn, Nr. Oakamoor, Staffordshire
£370,000
Brief Overview
Property Summary
The property is located in the picturesque hamlet of Ramshorn, Staffordshire Moorlands, enjoying a rural setting with open countryside and elevated views towards the Weaver Hills. The market towns of Ashbourne, Uttoxeter, and Leek are within convenient driving distance, offering a range of amenities, schools, and transport connections.
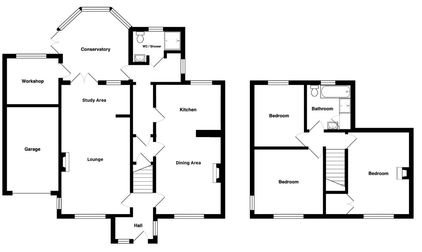
The accommodation is arranged over two floors and incorporates a mix of period character and modern fittings. The ground floor includes an entrance hallway with tiled flooring and timber panelling, a dual-aspect lounge featuring a cast-iron log-burning stove and glazed doors to the conservatory, and a dual-aspect kitchen/diner fitted with base and wall units, integrated cooking appliances, tiled flooring, and under-stairs storage. A rear hallway/utility area provides additional appliance space and access to a ground-floor shower room with a three-piece suite.
The first floor comprises three bedrooms and a family bathroom. Bedroom one features exposed trusses and over-stairs storage, bedroom two benefits from dual-aspect windows, and bedroom three enjoys rear-facing countryside views. The bathroom is fitted with a four-piece suite including bath, shower cubicle, WC, and wash hand basin, together with tiled walls and a heated towel rail.
Overall, the property provides well-proportioned accommodation with notable character features in an attractive rural setting.
The accommodation is arranged over two floors and incorporates a mix of period character and modern fittings. The ground floor includes an entrance hallway with tiled flooring and timber panelling, a dual-aspect lounge featuring a cast-iron log-burning stove and glazed doors to the conservatory, and a dual-aspect kitchen/diner fitted with base and wall units, integrated cooking appliances, tiled flooring, and under-stairs storage. A rear hallway/utility area provides additional appliance space and access to a ground-floor shower room with a three-piece suite.
The first floor comprises three bedrooms and a family bathroom. Bedroom one features exposed trusses and over-stairs storage, bedroom two benefits from dual-aspect windows, and bedroom three enjoys rear-facing countryside views. The bathroom is fitted with a four-piece suite including bath, shower cubicle, WC, and wash hand basin, together with tiled walls and a heated towel rail.
Overall, the property provides well-proportioned accommodation with notable character features in an attractive rural setting.
Full Details
Hallway
Entered via a timber front door, the hallway benefits from two uPVC double-glazed windows to the front and side elevations, a central heating radiator, Victorian-style complementary tiled…


