Spitfire Road, Castle Donington, Derby
£320,000
Brief Overview
Property Summary
* STUNNING POSITION AND A DOUBLE BRICK CARPORT TO THE REAR
* IMPRESSIVE THREE STOREY, FOUR BEDROOM SEMI DETACHED PROPERTY.
* BENEFITTING FROM UPVC DOUBLE GLAZED WINDOWS AND A GAS HEATING SYSTEM
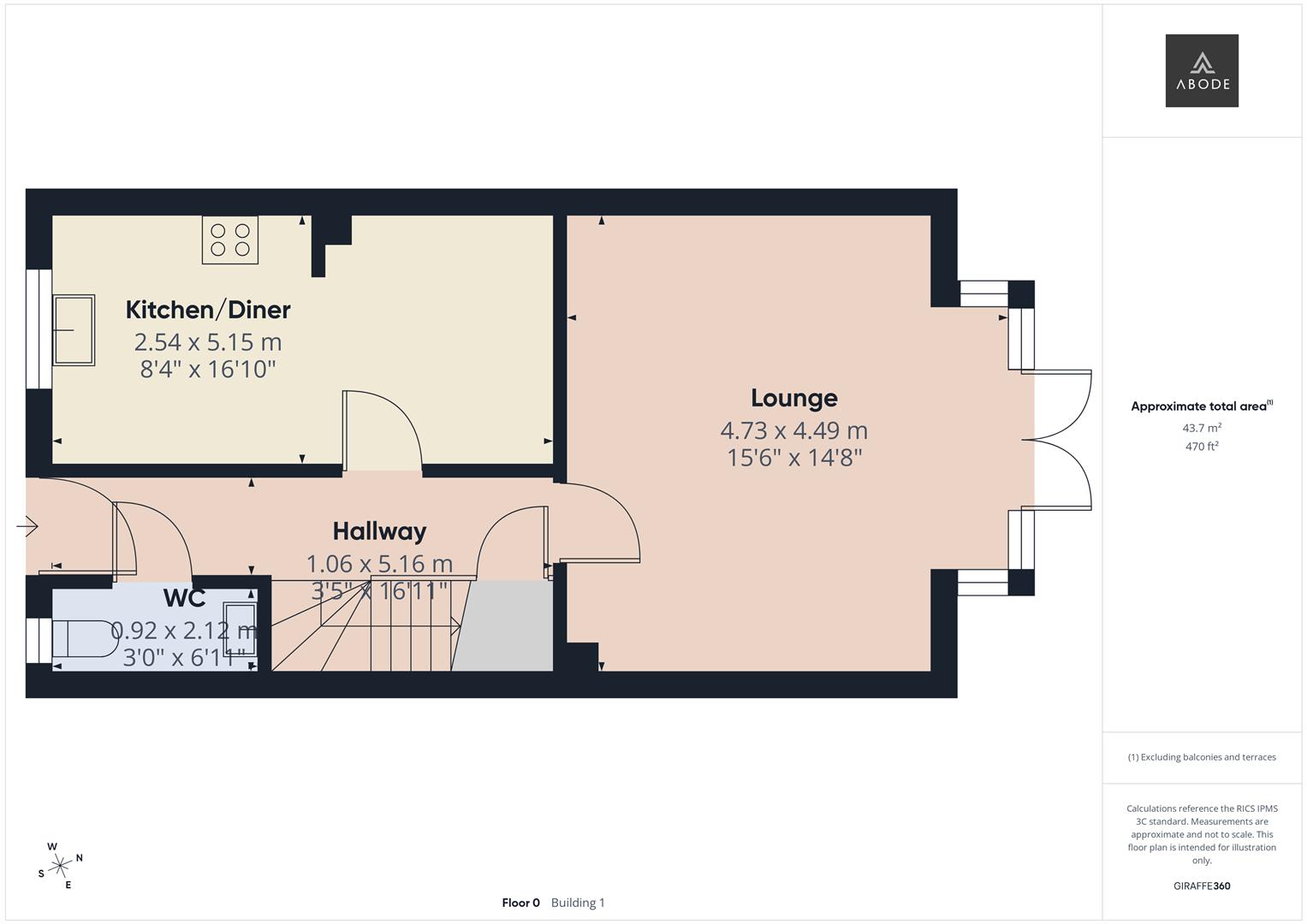
* HALL & GUEST CLOAKROOM,
* FITTED KITCHEN DINER AND A LOUNGE WITH DOORS ONTO THE GARDEN.
* FOUR BEDROOMS, MASTER WITH DRESSING ROOM
* EN SUITE & BATHROOM
* ENCLOSED REAR GARDEN AND A BRICK DOUBLE CARPORT AND STORAGE AREA.
* IMPRESSIVE THREE STOREY, FOUR BEDROOM SEMI DETACHED PROPERTY.
* BENEFITTING FROM UPVC DOUBLE GLAZED WINDOWS AND A GAS HEATING SYSTEM
* HALL & GUEST CLOAKROOM,
* FITTED KITCHEN DINER AND A LOUNGE WITH DOORS ONTO THE GARDEN.
* FOUR BEDROOMS, MASTER WITH DRESSING ROOM
* EN SUITE & BATHROOM
* ENCLOSED REAR GARDEN AND A BRICK DOUBLE CARPORT AND STORAGE AREA.
Full Details
HALL
Entrance door into the hall with stairs to the first floor, storage cupboard and radiator and door to -
KITCHEN DINER
Fitted wall mounted, base and drawer units with work surfaces and a sink and…


