Sandon Road, Cresswell
£240,000
Brief Overview
Property Summary
Abode are delighted to present this spacious and well-appointed home, offering versatile living accommodation and occupying a generous plot. The property benefits from ample off-road parking, a detached garage, and gardens to both the front and rear.
The home features a modern fitted kitchen diner complete with a range of integrated appliances, alongside a stylish and spacious family bathroom.
Ideally situated in Creswell, the property enjoys a peaceful setting close to beautiful countryside, whilst remaining conveniently located for access to nearby towns offering a wide range of shops, schools, and everyday amenities. Excellent transport links are also within easy reach, with the A50 just a short drive away, making it ideal for commuters.
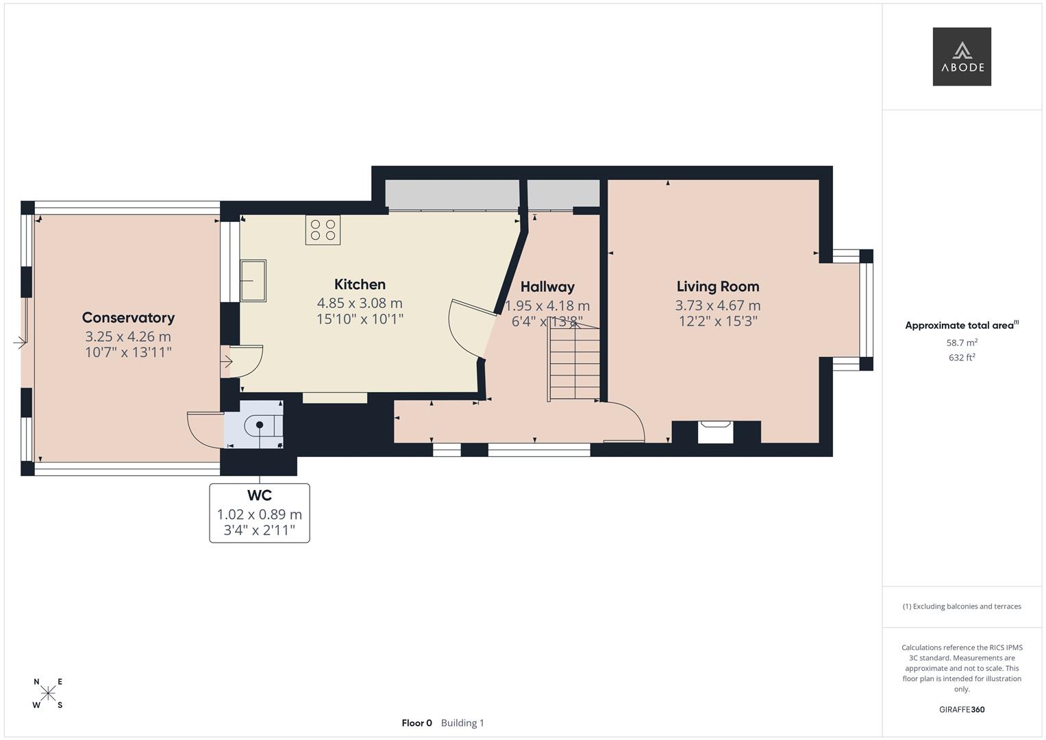
In brief, the accommodation comprises: living room, hallway, kitchen diner, conservatory, and ground floor WC. To the first floor are two well-proportioned bedrooms, one of which benefits from a generous walk-in wardrobe/home office, and a large family bathroom.
Early viewing is highly recommended to fully appreciate all that this home has to offer.
The home features a modern fitted kitchen diner complete with a range of integrated appliances, alongside a stylish and spacious family bathroom.
Ideally situated in Creswell, the property enjoys a peaceful setting close to beautiful countryside, whilst remaining conveniently located for access to nearby towns offering a wide range of shops, schools, and everyday amenities. Excellent transport links are also within easy reach, with the A50 just a short drive away, making it ideal for commuters.
In brief, the accommodation comprises: living room, hallway, kitchen diner, conservatory, and ground floor WC. To the first floor are two well-proportioned bedrooms, one of which benefits from a generous walk-in wardrobe/home office, and a large family bathroom.
Early viewing is highly recommended to fully appreciate all that this home has to offer.
Full Details
Living Room
Double glazed bay window to the front elevation, central heating radiator.
Hallway
Window to the side elevation, stairs leading up to the first floor, re storage cupboards.
Kitchen…
Read more...

