Pugin Road, Uttoxeter, Staffordshire
£234,950
Brief Overview
Property Summary
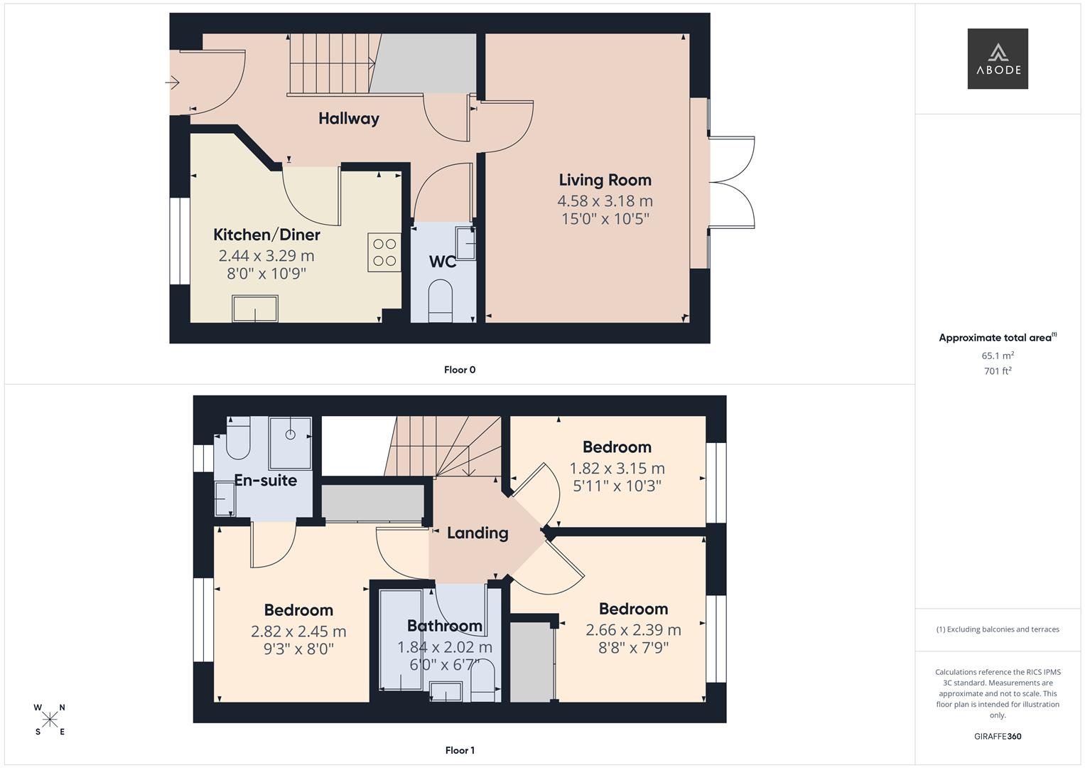
A perfect move-in ready home, having high-specification, energy-efficient three-bedroom home designed for the modern family. The ground floor features a contemporary kitchen-diner with integrated appliances and a bright, full-width lounge. This social heart of the home opens through French doors into a brilliantly sized rear garden, while a welcoming hallway provides essential under-stairs storage and a guest cloakroom.
Upstairs, the home offers three well-proportioned bedrooms. The principal suite and second bedroom both benefit from built-in mirrored wardrobes, with the master enjoying a private en-suite double shower. A versatile third bedroom and a sleek three-piece family bathroom complete the internal layout.
Engineered for sustainability, the property includes Solar PV panels contribute well on energy bills. With two dedicated parking spaces situated in tandem to the left of the property row. Excellent nearby transport links to the A50, offering a perfect balance of comfort, economy, and convenience.
Annual estate charges apply, we are informed at £205.00 per annum, managed by Preim Management Company.
Upstairs, the home offers three well-proportioned bedrooms. The principal suite and second bedroom both benefit from built-in mirrored wardrobes, with the master enjoying a private en-suite double shower. A versatile third bedroom and a sleek three-piece family bathroom complete the internal layout.
Engineered for sustainability, the property includes Solar PV panels contribute well on energy bills. With two dedicated parking spaces situated in tandem to the left of the property row. Excellent nearby transport links to the A50, offering a perfect balance of comfort, economy, and convenience.
Annual estate charges apply, we are informed at £205.00 per annum, managed by Preim Management Company.
Full Details
Hallway
A welcoming entrance hall is accessed via a composite front door, leading to a staircase rising to the first-floor landing. The hallway benefits from a central heating radiator with thermostat…


