Huntersfield, Shavington, Crewe
£377,000
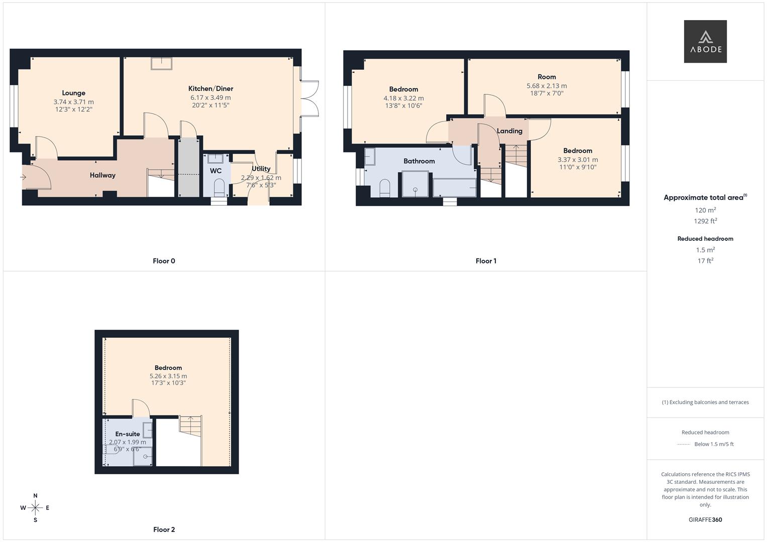
Brief Overview
Property Summary
Nestled within a secluded and peaceful corner of Shavington, this exclusive bespoke development comprises just four individually designed new-build homes. Thoughtfully crafted to combine contemporary living with village charm, each property offers high-quality finishes, energy-efficient construction, and carefully considered layouts tailored for modern family life.
Set away from the main thoroughfares, the development enjoys a private and tranquil setting while remaining conveniently positioned for local amenities, reputable schools, and excellent transport links to nearby towns and commuter routes.
Each home benefits from private parking and integrated EV car charging points, reflecting a forward-thinking approach to sustainable living. Spacious interiors, landscaped gardens, and premium specifications throughout ensure a perfect balance of comfort, style, and practicality.
Set away from the main thoroughfares, the development enjoys a private and tranquil setting while remaining conveniently positioned for local amenities, reputable schools, and excellent transport links to nearby towns and commuter routes.
Each home benefits from private parking and integrated EV car charging points, reflecting a forward-thinking approach to sustainable living. Spacious interiors, landscaped gardens, and premium specifications throughout ensure a perfect balance of comfort, style, and practicality.
Full Details
Entrance Hallway
A welcoming hallway featuring contemporary ceiling spotlights and a smoke alarm, with a dog-leg staircase rising to the first-floor landing. An underfloor heating thermostat ensures…


