Great Cornbow, Halesowen
£3,000,000
Brief Overview
Property Summary
Former Office Building with On-Site Parking – Prime Halesowen Town Centre Redevelopment Opportunity
The property occupies a highly prominent and strategic position, located between Halesowen’s pedestrianised retail core and the surrounding ring road, providing excellent accessibility, visibility, and connectivity.
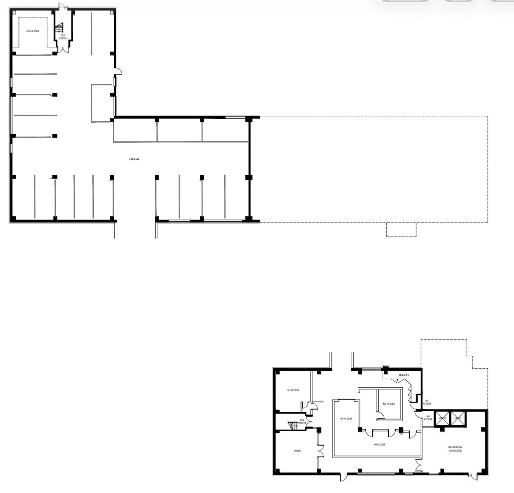
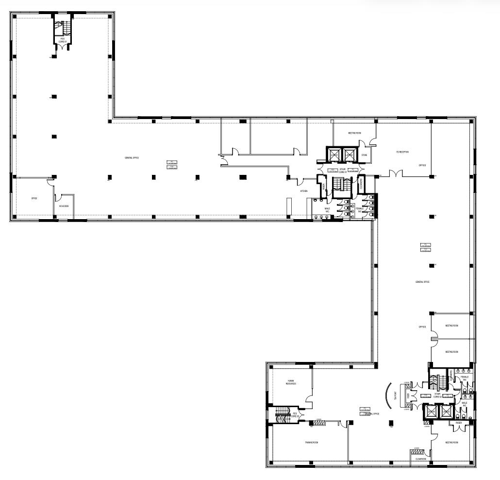
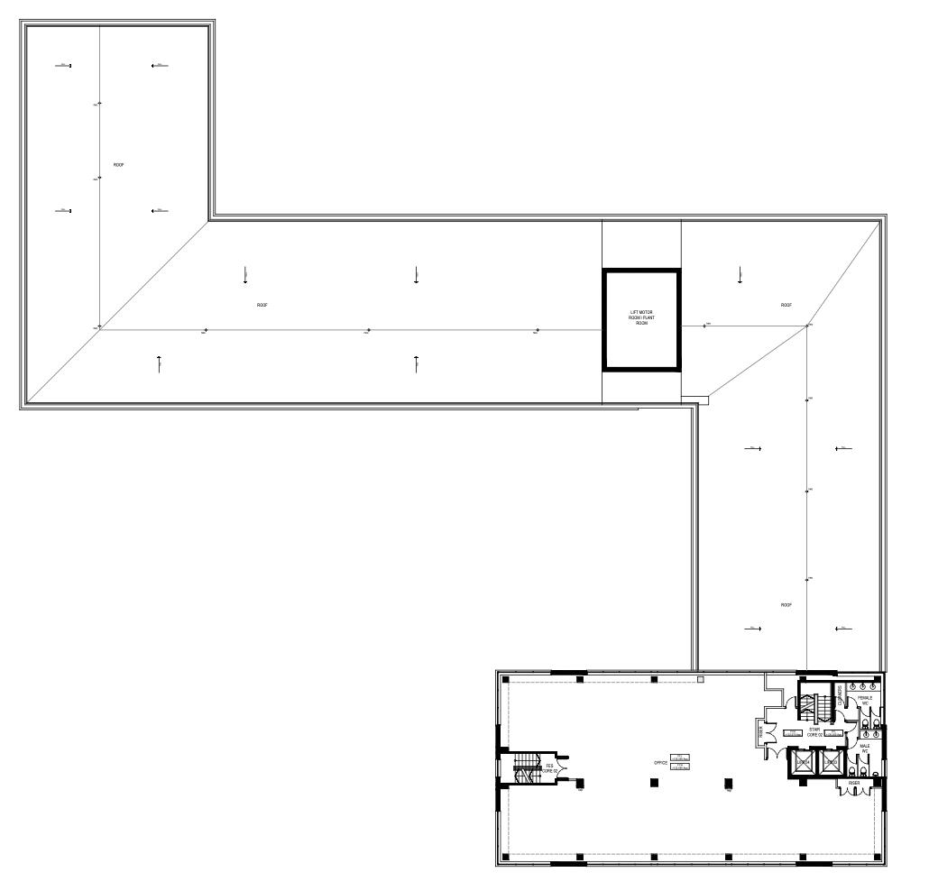
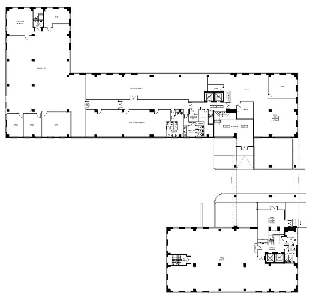
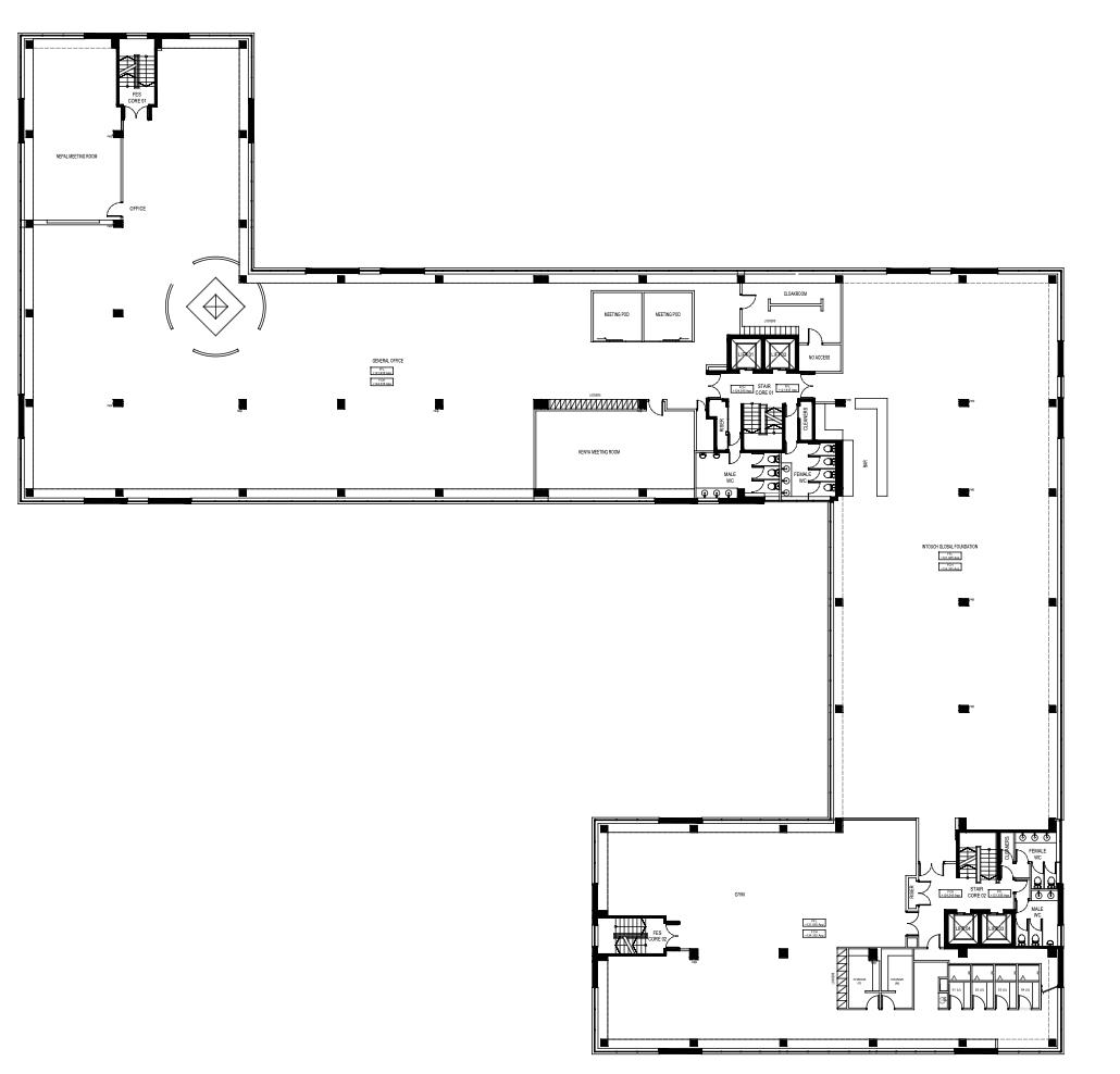
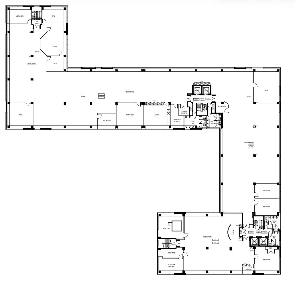
The site benefits from prior notification approval (Ref: P25/0468/PN3MA) for conversion from commercial use to residential, allowing for the creation of 90 apartments within the existing structure.
"The Dudley Metropolitan Borough Council hereby determines in accordance with Part 3 of
Schedule 2 to the Town & Country Planning (General Permitted Development) Order 2015 that
prior approval of the Local Planning Authority is REQUIRED AND IS APPROVED for the above
described development subject to conditions"
Previously utilised as office accommodation, the building has been comprehensively prepared for redevelopment, with internal services removed and asbestos remediation completed.
This presents a rare opportunity for developers to deliver a substantial residential scheme in a town centre location, with scope for a range of end uses including private apartments, build-to-rent, or specialist accommodation such as retirement or extra care living.
The property occupies a highly prominent and strategic position, located between Halesowen’s pedestrianised retail core and the surrounding ring road, providing excellent accessibility, visibility, and connectivity.
The site benefits from prior notification approval (Ref: P25/0468/PN3MA) for conversion from commercial use to residential, allowing for the creation of 90 apartments within the existing structure.
"The Dudley Metropolitan Borough Council hereby determines in accordance with Part 3 of
Schedule 2 to the Town & Country Planning (General Permitted Development) Order 2015 that
prior approval of the Local Planning Authority is REQUIRED AND IS APPROVED for the above
described development subject to conditions"
Previously utilised as office accommodation, the building has been comprehensively prepared for redevelopment, with internal services removed and asbestos remediation completed.
This presents a rare opportunity for developers to deliver a substantial residential scheme in a town centre location, with scope for a range of end uses including private apartments, build-to-rent, or specialist accommodation such as retirement or extra care living.
Full Details
Prior Notification Consent
Application reference number
P25/0468/PN3MA
Prior Notification under Part 3 of the Town and Country Planning (GPDO) 2015 as amended for change of use from Commercial,…


