Dove Lane, Rocester, Uttoxeter ST14 5LB
£175,000
Brief Overview
Property Summary
** Investors only **
ABODE Estate Agents are pleased to offer for sale this beautifully renovated property, arranged over three floors and boasting high ceilings, a stunning open-plan living space, and three well-proportioned bedrooms.
Situated in the charming village of Rocester, the property benefits from a range of local amenities including a first school, shop/post office, pub, and village hall. The location also offers excellent commuting links to the nearby market towns of Uttoxeter and Ashbourne, along with easy access to the A50, connecting to both the M1 and M6.
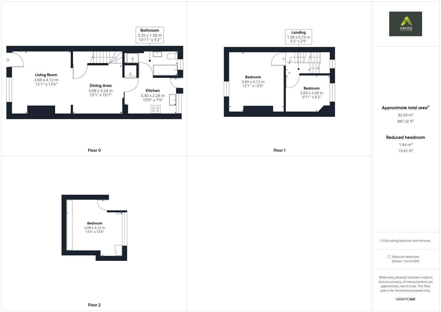
The property is entered via the front into a spacious open-plan living area. Previously two separate rooms, this bright and welcoming space now offers a generous living and dining area, complete with an enclosed staircase to the side, useful under-stairs storage cupboard, and an attractive feature fireplace.
To the rear of the property is a newly fitted kitchen, comprising a range of matching base and eye-level units, space for appliances, an inset sink unit, and tiled splashbacks.
Adjacent to the kitchen is the bathroom, which is fitted with a four-piece suite including a low flush WC, pedestal wash hand basin, panelled bath, and separate shower enclosure. The bathroom also benefits from tiled splashback areas, full-height tiling within the shower cubicle, and a tiled floor.
To the first floor are two bedrooms, with a further staircase leading to the third bedroom on the top floor, creating a versatile space ideal as a bedroom, office, or guest room.
Early viewing is highly recommended to appreciate the accommodation on offer. Contact ABODE Estate Uttoxeter on 01889 567777
ABODE Estate Agents are pleased to offer for sale this beautifully renovated property, arranged over three floors and boasting high ceilings, a stunning open-plan living space, and three well-proportioned bedrooms.
Situated in the charming village of Rocester, the property benefits from a range of local amenities including a first school, shop/post office, pub, and village hall. The location also offers excellent commuting links to the nearby market towns of Uttoxeter and Ashbourne, along with easy access to the A50, connecting to both the M1 and M6.
The property is entered via the front into a spacious open-plan living area. Previously two separate rooms, this bright and welcoming space now offers a generous living and dining area, complete with an enclosed staircase to the side, useful under-stairs storage cupboard, and an attractive feature fireplace.
To the rear of the property is a newly fitted kitchen, comprising a range of matching base and eye-level units, space for appliances, an inset sink unit, and tiled splashbacks.
Adjacent to the kitchen is the bathroom, which is fitted with a four-piece suite including a low flush WC, pedestal wash hand basin, panelled bath, and separate shower enclosure. The bathroom also benefits from tiled splashback areas, full-height tiling within the shower cubicle, and a tiled floor.
To the first floor are two bedrooms, with a further staircase leading to the third bedroom on the top floor, creating a versatile space ideal as a bedroom, office, or guest room.
Early viewing is highly recommended to appreciate the accommodation on offer. Contact ABODE Estate Uttoxeter on 01889 567777
Property Features
- Newly renovated property with three floors of living accomodation.
- High ceilings and open-plan living space at the front.
- Two bedrooms on the first floor, staircase to the third bedroom.
- Located in Rocester with a school, shop/post office, pub, and village hall.
- Easy commuting to Uttoxeter, Ashbourne, and the A50 with M1 and M6 links.
- Entry opens into a large open-plan living area with a feature fireplace.
- Living area has an enclosed staircase and built-in storage.
- New kitchen with matching units, inset sink, and tiled splashbacks.
- Bathroom has a four-piece suite and extensive tiling.
- The property has had a new roof and a boiler that is less than a year old.
Full Details
N.b
Please note that images used were taken prior to the most recent occupation.
Living Room 3.69 x 4.12 (12'1" x 13'6")
A bright and welcoming living space positioned at the front of the property,…


