Coplow Avenue, Tean
£195,000
Brief Overview
Property Summary
Abode are delighted to offer for sale this versatile semi-detached dorma bungalow.
The property can be configured to suit a range of needs, offering either three bedrooms or two bedrooms with an additional reception room, depending on preference. Externally, it benefits from off-road parking and an enclosed rear garden, ideal for both relaxing and entertaining.
Situated in the highly sought-after village of Tean, the home is within walking distance of local shops, schools, and everyday amenities, whilst still enjoying a semi-rural setting with surrounding countryside. The nearby towns of Cheadle and Uttoxeter are also easily accessible, offering a wider range of facilities and transport links.
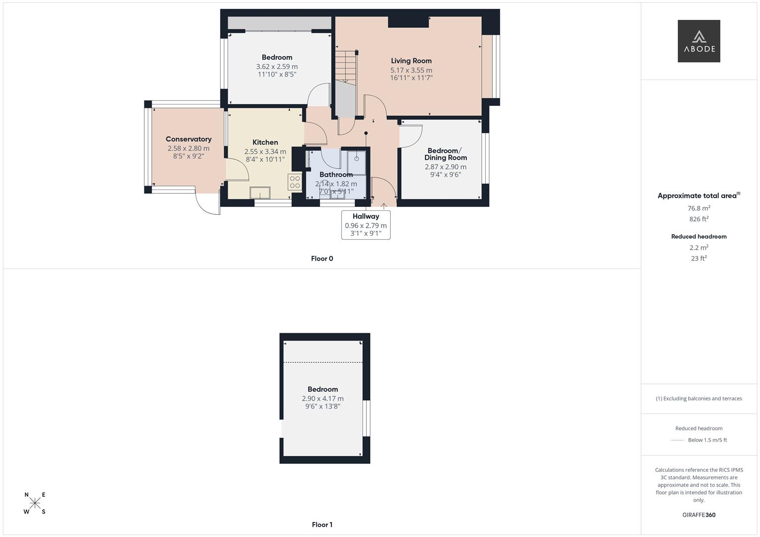
The accommodation briefly comprises;- an entrance hallway, kitchen, living room, conservatory, bathroom, a flexible bedroom/dining room, and a further bedroom to the ground floor. To the first floor, the loft conversion provides an additional bedroom.
This adaptable home is ideal for a variety of buyers, and early viewing is highly recommended to fully appreciate its potential.
The property can be configured to suit a range of needs, offering either three bedrooms or two bedrooms with an additional reception room, depending on preference. Externally, it benefits from off-road parking and an enclosed rear garden, ideal for both relaxing and entertaining.
Situated in the highly sought-after village of Tean, the home is within walking distance of local shops, schools, and everyday amenities, whilst still enjoying a semi-rural setting with surrounding countryside. The nearby towns of Cheadle and Uttoxeter are also easily accessible, offering a wider range of facilities and transport links.
The accommodation briefly comprises;- an entrance hallway, kitchen, living room, conservatory, bathroom, a flexible bedroom/dining room, and a further bedroom to the ground floor. To the first floor, the loft conversion provides an additional bedroom.
This adaptable home is ideal for a variety of buyers, and early viewing is highly recommended to fully appreciate its potential.
Full Details
Entrance Hallway
UPVC double glazed door leading in from the side, central heating radiator and storage cupboard.
Living Room
UPVC double glazed bay window to the front elevation, central heating…


