Accommodation
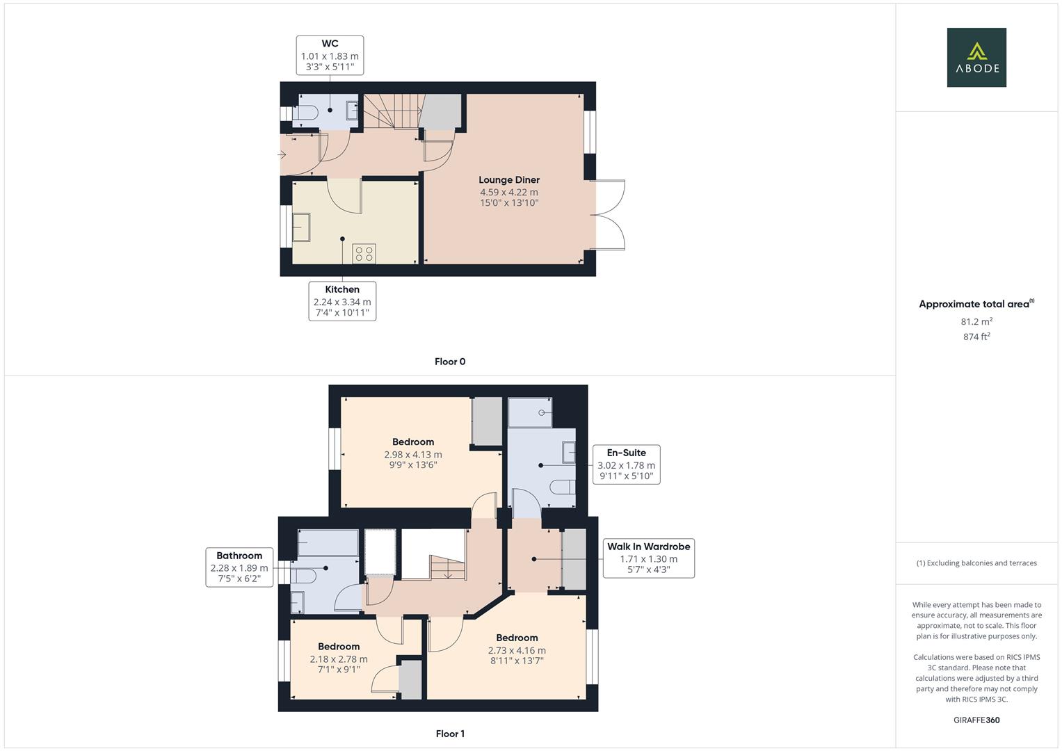
Ground Floor
The accommodation opens with a welcoming entrance hallway that provides access to the principal reception spaces and stairs rising to the first floor. The kitchen is fitted with a range of modern wood-effect wall and base units complemented by laminate worktops, integrated oven and hob with stainless steel splash back and extractor, and space for additional appliances. To the rear, the lounge diner offers excellent proportions with ample natural light from the windows and French doors that lead out to the rear garden. A downstairs WC is located off the hallway and includes a low-level WC and wash hand basin with tiled splash back.
First Floor
Upstairs, the master bedroom sits to the rear and benefits from a walk-in wardrobe and en-suite shower room, which is fitted with a corner shower cubicle, wash hand basin, low-level WC, heated towel rail, and skylight. The second bedroom is a spacious double to the front, featuring built-in mirrored wardrobes, while the third bedroom makes an ideal single room or study. The family bathroom includes a three-piece suite with a panelled bath and electric shower over, wash hand basin, and low-level WC.
Outside
To the front, the property offers a block paved driveway, providing off-street parking and access to the integral garage. A paved pathway leads to the front entrance and continues via a side gate to the rear. The rear garden is enclosed by fencing and brick walls, laid mainly to gravel for ease of maintenance with paved seating areas, a garden shed, and established planting to the borders—ideal for entertaining and outdoor relaxation.
Location
Situated within Branston, the property enjoys convenient access to a range of local amenities including shops, schools, and recreational facilities. Burton-on-Trent town centre is just a short drive away, with excellent road links to the A38 providing onward travel to Derby, Lichfield, and Birmingham. The area is well-served by public transport and local parks, making it a practical choice for families and commuters alike.
Read less