Olive Close, Branston, Burton-On-Trent
£290,000
Offers Over
Brief Overview
Property Summary
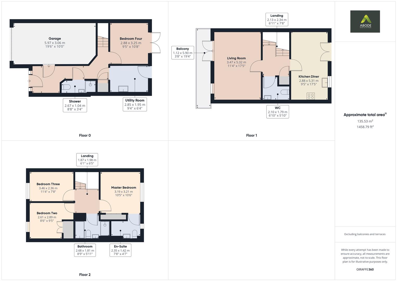
A superb four bedroom semi detached property, having a versatile accommodation, situated within a popular location having access to a range of local amenities and transport links. The property benefits from four well proportioned bedrooms, fully fitted kitchen diner, integral garage and a driveway providing parking facility. Viewing is highly recommended strictly via appointment only.


