Longlands, Doles Lane, Findern DE65 6AX
£525,000
Brief Overview
Property Summary
The Longlands is a thoughtfully designed detached property offering versatile living space, perfect for modern family life. Set within an exclusive village development, this home combines elegance, practicality, and comfort across two well-planned floors.
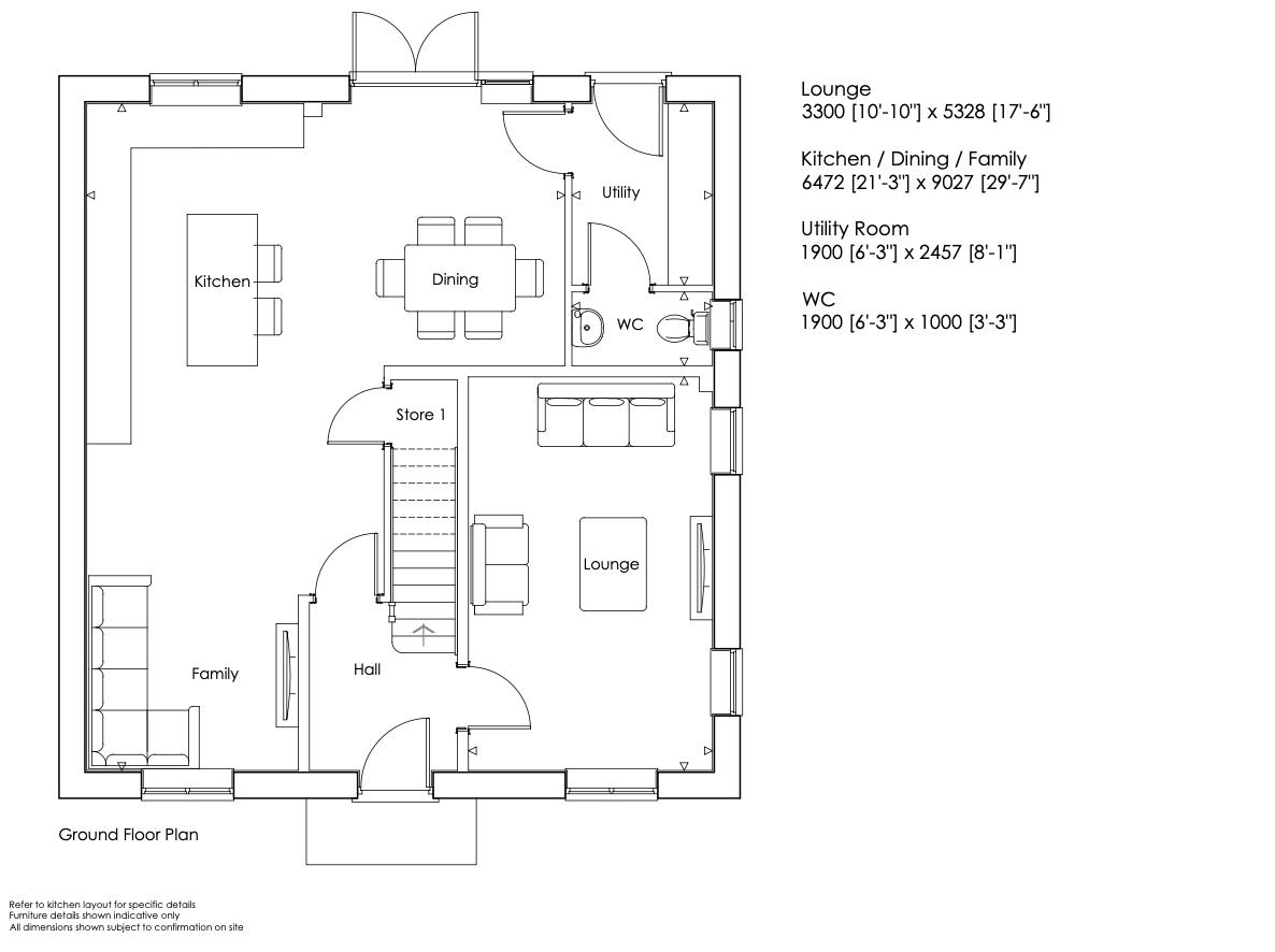
The ground floor features a welcoming hallway with guest W.C. and a stylish lounge with dual-aspect windows. To the rear, the heart of the home is revealed in the impressive open-plan kitchen, dining, and family area with French doors opening out to the garden, complemented by a separate utility room.
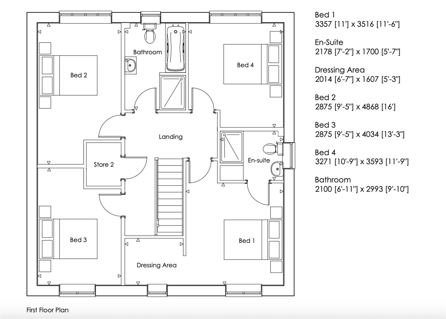
Upstairs, the first floor offers four well-proportioned bedrooms and a contemporary family bathroom. The luxurious principal bedroom is complete with its own en-suite and dressing area.
The ground floor features a welcoming hallway with guest W.C. and a stylish lounge with dual-aspect windows. To the rear, the heart of the home is revealed in the impressive open-plan kitchen, dining, and family area with French doors opening out to the garden, complemented by a separate utility room.
Upstairs, the first floor offers four well-proportioned bedrooms and a contemporary family bathroom. The luxurious principal bedroom is complete with its own en-suite and dressing area.
Full Details
KEY FEATURES
• 10-Year New Build Guarantee
• Double-glazed throughout
• Luxury fitted kitchen with integrated quality appliances
• Gas central heating and energy-saving solar panels
• Contemporary fitted…


