Lister Grove, Stallington, Blythe Bridge
£250,000
Brief Overview
Property Summary
Abode are delighted to present this spacious and well-presented four-bedroom family home, offering generous and versatile accommodation arranged over three floors.
The property benefits from a garage, parking space, and gardens to both the front and rear. The front garden also offers potential to create additional off-road parking if desired, subject to any necessary consents.
Situated in the sought-after village of Stallington, the home enjoys a semi-rural setting with a strong community feel, whilst still providing convenient access to nearby towns. Stallington offers local amenities, easy access to local schools, and excellent commuter links, making it an ideal location for families and professionals alike.
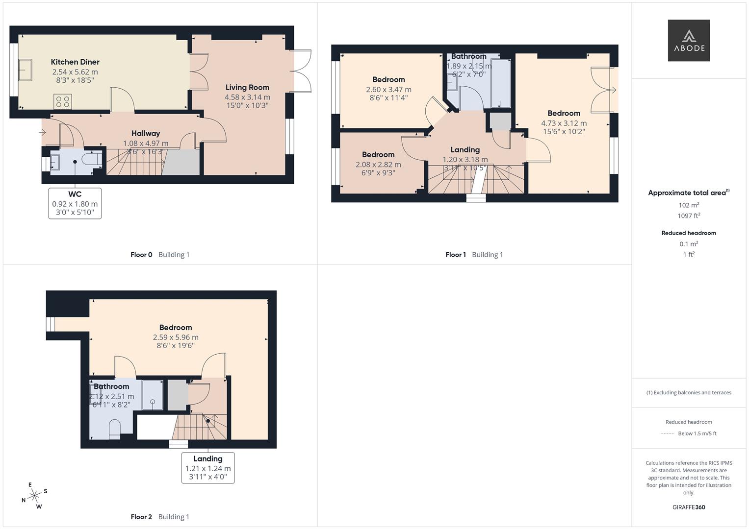
Internally, the accommodation briefly comprises;- an entrance hallway, ground floor WC, a spacious kitchen diner, and a living room. To the first floor, there are three well-proportioned bedrooms and a family bathroom, whilst the second floor hosts an impressive master bedroom complete with its own ensuite.
Additional benefits include UPVC double glazing throughout and gas central heating.
This fantastic home is perfectly suited to growing families and first-time buyers alike. Early viewing is highly recommended to fully appreciate the space and location on offer.
The property benefits from a garage, parking space, and gardens to both the front and rear. The front garden also offers potential to create additional off-road parking if desired, subject to any necessary consents.
Situated in the sought-after village of Stallington, the home enjoys a semi-rural setting with a strong community feel, whilst still providing convenient access to nearby towns. Stallington offers local amenities, easy access to local schools, and excellent commuter links, making it an ideal location for families and professionals alike.
Internally, the accommodation briefly comprises;- an entrance hallway, ground floor WC, a spacious kitchen diner, and a living room. To the first floor, there are three well-proportioned bedrooms and a family bathroom, whilst the second floor hosts an impressive master bedroom complete with its own ensuite.
Additional benefits include UPVC double glazing throughout and gas central heating.
This fantastic home is perfectly suited to growing families and first-time buyers alike. Early viewing is highly recommended to fully appreciate the space and location on offer.
Full Details
Entrance Hallway
Door leading in from the front, central heating radiator, stairs leading up to the first floor, under stairs storage cupboard.
WC
WC and wash hand basin with tiled splash back. Central…


