Doles Lane, Findern, Derby

4

2
Brief Overview
Property Summary
**** STUNNING FAMILY HOME *** Plot 6 The Willowsend is a stunning detached family home offering a good size living space within this exclusive small development in the sought-after village of Findern.
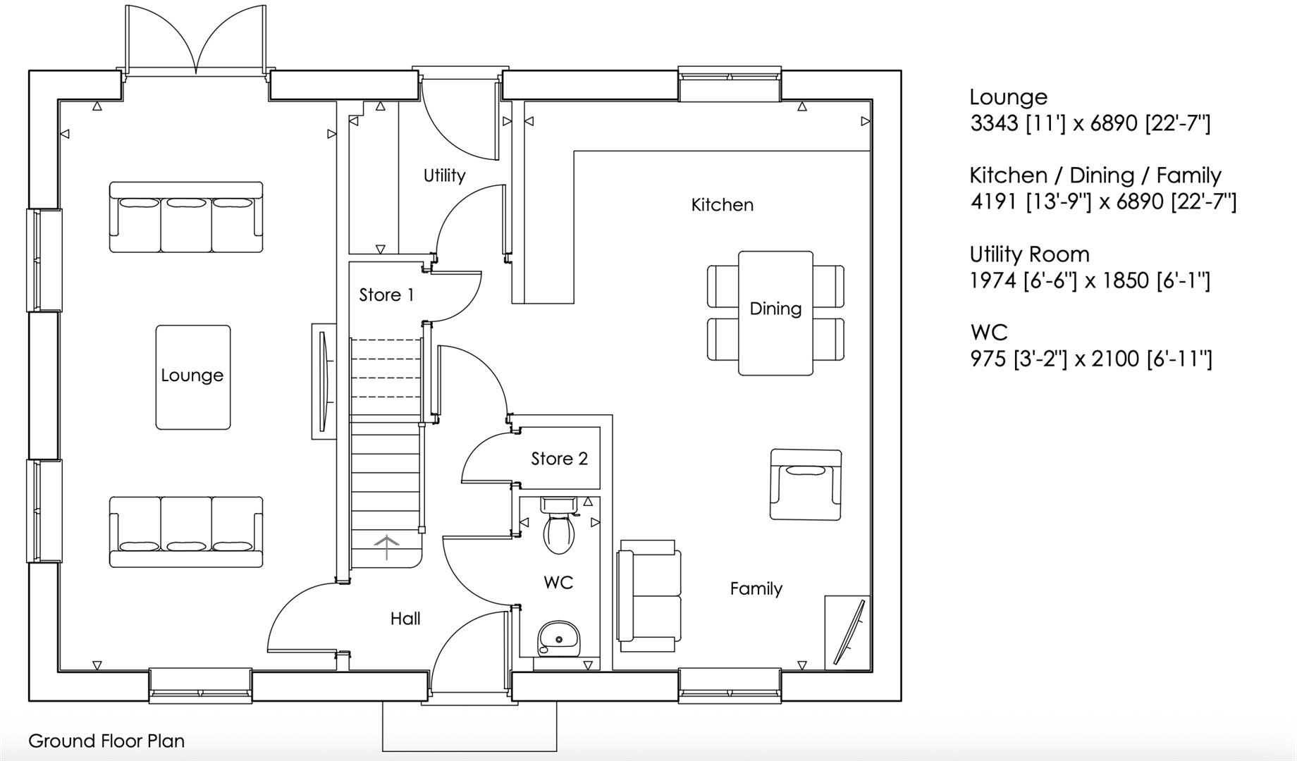
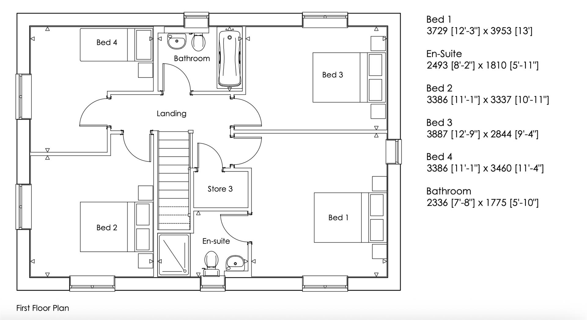
The accommodation comprises an entrance hall with guest W.C., a spacious front- to-back lounge with views over the rear garden, and an open-plan family dining kitchen designed for modern living and a utility room. To the first floor, a landing leads to four bedrooms and a contemporary bathroom, plus luxurious en-suite to the principal bedroom.
SOUTH FACING GARDEN WITH VIEWS OVER OPEN FIELDS TO THE REAR.
Full Details
KEY FEATURES
• 10-Year New Build Guarantee
• Double-glazed throughout
• Luxury fitted kitchen with integrated quality appliances
• Gas central heating and energy-saving solar panels
• Contemporary fitted…
Read more...
KEY FEATURES
• 10-Year New Build Guarantee
• Double-glazed throughout
• Luxury fitted kitchen with integrated quality appliances
• Gas central heating and energy-saving solar panels
• Contemporary fitted bathrooms
• Prime village location, combining community charm with countryside living
Ground Floor
• Lounge: 3343 × 6890 mm (11’” × 22’7”)
• Kitchen / Dining / Family: 5541 × 6890 mm (13’9” × 22’7”)
• Utility Room: 1974 × 1850 mm (6’6” × 6’1”)
• WC: 975 × 2100 mm (3’2” × 6’11”)
First Floor
• Bedroom 1: 3729 × 3953 mm (12’3” × 13’0”)
• En-Suite (to Bedroom 1): 2493 × 1810 mm (8’2” × 5’11”)
• Bedroom 2: 3386 × 3337 mm (11’1” × 10’11”)
• Bedroom 3: 3887 × 2844 mm (12’9” × 9’4”)
• Bedroom 4: 3386 × 3460 mm (11’1” × 11’4”)
• Bathroom: 2336 × 1775 mm (7’8” × 5’10”)
SPECIFICATION OVERVIEW
External
• Tarmacadam Drive with Concrete Edgings
• Timber Gate with Bolt and Latch
• Turf to the Rear
• Planting to front garden
• 1.8m High Close board Fence (where applicable)
• Slabs to Front pathways
• Slabs to Side and Rear pathways (where applicable)
• Slabs to Patio Area
• Composite External Doors with multi-locking system
• French Doors to rear
• PIR Light to Front and Rear
• External Socket to Rear
• Outside Tap (to either rear or side depending on plot)
• Inset PV to roof
• Painted Bargeboards on gable ends
• Exposed painted rafters to eves
• UPVC double glazing (white to plots with brick, agate grey to plots with render)
• Wiring in place to enable the install of a car charger
Garage (Where applicable)
• Up and Over Garage Door
• Pendant Light with switch & 1 x Double Socket
Joinery & Ironmongery
• Internal Doors – Suffolk Oak Vaneer (paintable finish)
• Chrome Finished Internal Door Handles
• Chrome Finished Ironmongery to Front Door
• Skirting & Architrave – Torus profile, finished in satin white paint
• Staircase – White painted with oak handrail and caps (treads and riser ready to
accept carpet). Oak spindles can be selected as an optional extra.
Plumbing
• Rhoper Rhodes white Sanitaryware
• Rhoper Rhodes Chrome Taps
• Soft Close WC seats
• Plumbing for washing machine (where applicable)
• Vanity units to Bathrooms & Ensuite
• Gas central Heating and Hot Water system via combination of boiler, thermostatic
radiator valves and room thermostats
• Chrome Towel Radiators to all Bathrooms and Ensuite
• Chrome Finished Internal Door Handles
• Mirrored Cabinets to Bathrooms and Ensuite with integrated shaver socket
Ceramic Tiling
• Choice of Decorative Porcelain Wall and Floor Tiles
Bathrooms & Ensuite
• Tiled Floor
• Half height tiling to all walls (except shower area)
• Full height tiling to walls around shower area
Cloakroom
• Single Course of Tiles to Wash Hand Basin (dependent on tile size)
Decoration
• Off-white emulsion to all walls and ceilings
• Brilliant white to all bathrooms and ensuite
Electrical
• Ring smart Doorbell
• Fused Spur ready for Intruder Alarm to be installed
• LED Downlighters to Bathrooms and Ensuite
• White sockets and switches
• Pendants to all rooms unless specified
• Mains wired (with battery backup) smoke detectors
• Battery powered carbon monoxide detectors
• Light to loft with double socket
• Ariel point within loft space
Flooring
• Concrete floor finish to ground floor – ready to accept floor finishes
• Painted Staircase treads and risers – ready to accept floor finishes
• Composite wood floor to first floor – ready to accept floor finishes
• Tiled floors to bathrooms and ensuite
• Unfinished Concrete Floor to Garages
A variety of hard flooring and carpet choices, with underlay, can be chosen as optional
extras.
Kitchens
A range of quality Magnet kitchen styles available with lighting to the underside of wall cabinets and a range of quality work surfaces.
These sales particulars do not constitute a contract, from part of a contract or a warranty. Whilst
customer choices and optional extras are available, they can only be chosen at an early stage
of the construction phase of each plot. Please check with the sales representative to confirm
specifications, optional extras and specific details
NOTE
Please note the photography and virtual tour are from a similar design home, The Hawthorn. * the ground floor layout and orientation of the kitchen/dinner is slightly smaller - please consult a sales advisor for more information.
Read less
Property Location