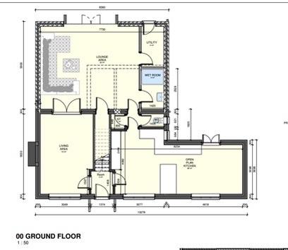
Planning Application
The owner has submitted a planning application for the erection of a two-storey rear extension, designed to create a spacious five-bedroom family home with enhanced living accommodation. The proposed plans can be found within the photo reel.
The proposal comprises a two-storey rear extension projecting approximately 5.5 metres from the rear elevation at ground floor level and 4 metres at first-floor level. The plans include the addition of a substantial reception room to the rear, significantly increasing the main living space and improving the overall layout of the property.
Hallway
A composite double-glazed front entry door opens into a bright and welcoming hall with herringbone oak flooring throughout. The staircase rises to the first-floor landing, and internal doors lead to the principal ground-floor rooms.
Living/Dining Kitchen
The heart of the home is a bespoke Howdens kitchen finished with a range of matching base and eye-level storage cupboards and drawers, all topped with elegant granite worktops. Integrated appliances include double ovens, a microwave, fridge freezer, induction hob with integrated extractor, ceramic sink unit with inset drainer and mixer tap, and dishwasher. Three uPVC double-glazed windows to the front and side elevations allow natural light to flood the space, while French doors open to the rear garden from the living/dining space. The herringbone oak flooring continues throughout, with ceiling spotlights and three central heating radiators completing the stylish and functional design.
Rear Hall
Finished with herringbone flooring, this area provides access to a small loft space via a metal hatch, with internal doors leading to the utility cupboard and WC.
Utility Cupboard
A practical space housing the rewired and refitted consumer unit, glazed rear window, and a range of eye-level shelving for storage.
W.C.
Fitted with a low-level WC and integrated wash hand basin with mixer tap, this cloakroom features herringbone flooring, a central heating radiator, and a uPVC double-glazed frosted window to the side elevation.
Sitting Room
A cosy and functional space with a glazed rear window, fitted base and eye-level storage cupboards, roll-top work surfaces, stainless steel sink and drainer with mixer tap, and a rear entry door leading to a useful former outhouse ideal for storage.
Lounge
A beautifully proportioned reception room enjoying dual-aspect views to the front and rear via two uPVC double-glazed windows. The herringbone oak flooring adds warmth and character, while the focal point is a cast iron log-burning fireplace set within a granite composite Adam-style surround. The room also features a TV aerial point and two central heating radiators.
Landing
The first-floor landing is brightened by a uPVC double-glazed rear window and features a central heating radiator, glass barrier with handrail to the staircase, loft hatch access, and doors leading to the bedrooms and bathroom.
Bedroom One
A well-proportioned room with a uPVC double-glazed front window, central heating radiator, and telephone point.
Bedroom Two
Also front-facing, with a uPVC double-glazed window and central heating radiator.
Bedroom Three
Positioned to the rear, this bedroom features a uPVC double-glazed window and central heating radiator.
Bathroom
The re-fitted bathroom offers a stylish four-piece suite comprising a low-level WC with continental flush, freestanding claw-foot bath with chrome taps and shower attachment, large corner shower cubicle with waterfall showerhead and complementary wall tiling, and wash hand basin with chrome mixer tap. Additional features include a central heating radiator, ceiling spotlights, and a uPVC double-glazed frosted window to the rear elevation.
Car Port & Outbuildings
The property benefits from two versatile store/workshop rooms with windows to the rear, fitted work units and storage units, all under a new roof with timber exterior cladding. Double interior doors open to a spacious double-width carport at the frontage.
Convenant
We are aware of a covenant on the title, requiring approval prior to planning consents being subsequently approved.
"The attention of potential purchasers is drawn to, inter alia, the
restrictive covenants held over New House which were originally contained in
a transfer dated 23rd October, 2014. The benefit of these covenants are now
held by the Bolton 2024 Settlement".
Read less