Accommodation
Ground Floor
The entrance hallway includes stairs rising to the first floor, a radiator, and access to the main living spaces. The front reception room features a double-glazed window to…
Read more...
Accommodation
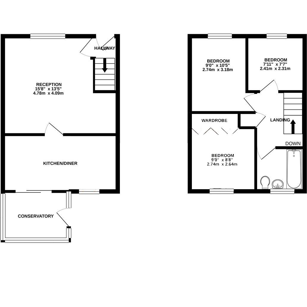
Ground Floor
The entrance hallway includes stairs rising to the first floor, a radiator, and access to the main living spaces. The front reception room features a double-glazed window to the front aspect, a central heating radiator, coving, and a fireplace with a tiled hearth and gas fire. To the rear, there is a fitted kitchen diner with a selection of wall and base units, complementary work surfaces, an integrated oven with hob and extractor, a sink with drainer, and space for appliances including a washing machine and fridge. Sliding doors open into the conservatory, which has a tiled floor, radiator, and French doors leading out to the garden.
First Floor
The landing provides loft access, a radiator, and a storage cupboard. The main bedroom is positioned to the rear and includes built-in wardrobes, a radiator, and a window overlooking the garden. The second bedroom is a good-sized room with a radiator and a window to the front elevation, while the third bedroom also faces the front and has a built-in bed with storage below, a radiator, and laminate flooring. The family bathroom includes a panelled bath with mixer taps and shower attachment, a separate electric shower over, a folding screen, pedestal wash basin, low-level WC, ladder-style heated towel rail, tiled walls, and an obscure window to the rear.
Outside
To the front, the property benefits from a lawned garden with a driveway providing off-street parking, leading to double gates that open to additional parking and a detached garage with up-and-over door, power, and lighting. The rear garden is enclosed with timber fencing, has lawned areas, planted borders.
Read less