Chatsworth Drive, Tutbury, Burton-On-Trent
£220,000
Brief Overview
Property Summary
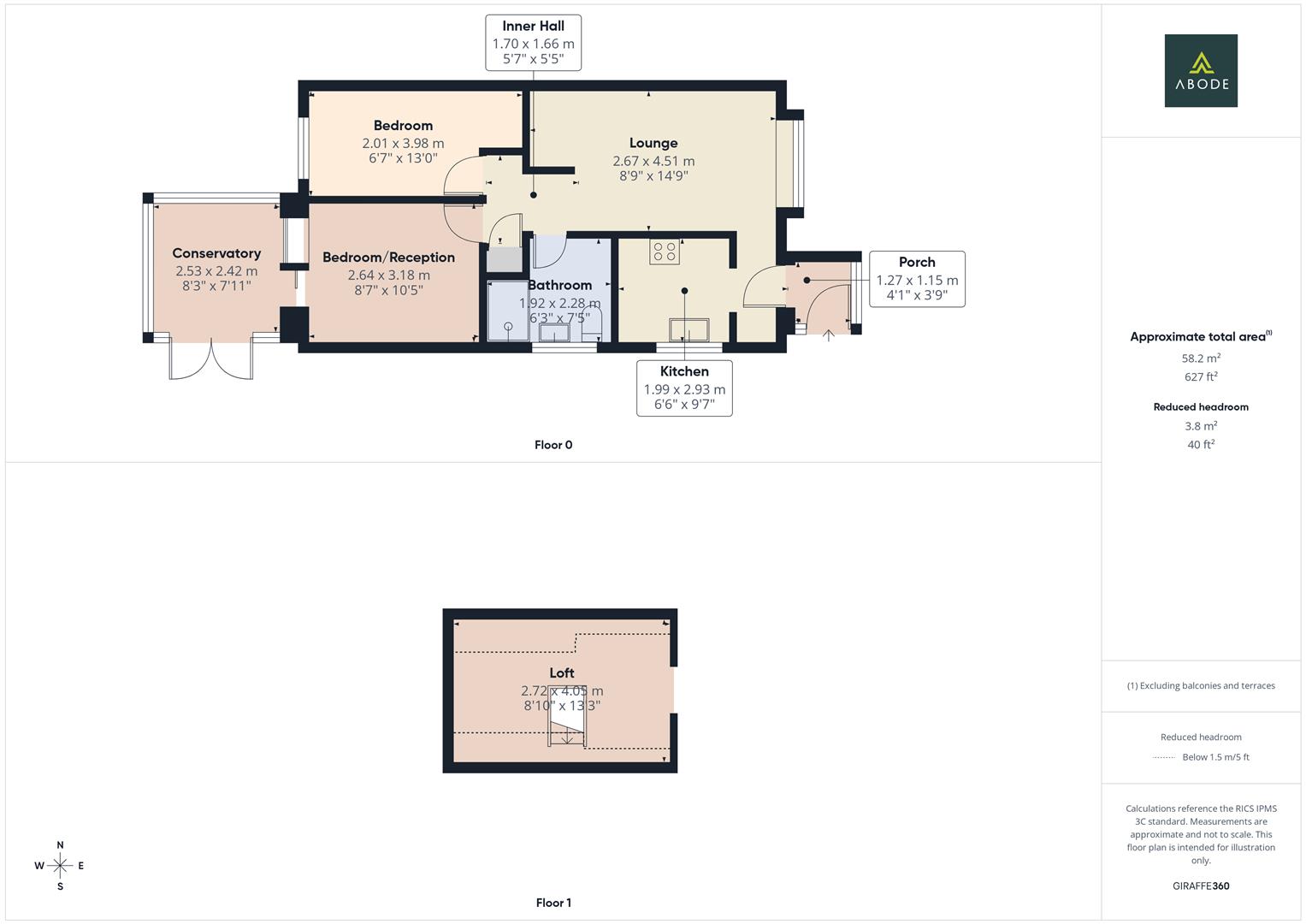
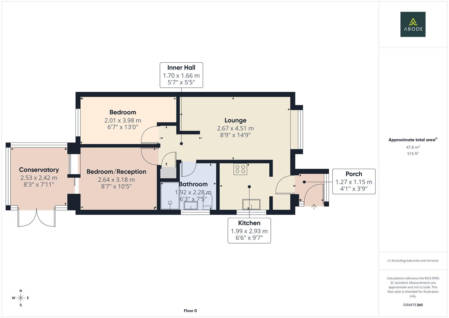
**** CHARMING SEMI DETACHED BUNGALOW **** Located in the highly regarded village of Tutbury this semi detached bungalow offers a porch, modern fitted kitchen, lounge, two bedrooms, shower room and a garden room. Loft with velux window, floored and ladder. Drive and covered storage area with light and power,, landscaped garden. Offered for sale with no upward chain.
Full Details
PORCH
Entrance door into the porch with upvc double glazed windows and a door to -
KITCHEN
Fitted wall mounted, base and drawer units with work surfaces and a sink and drainer unit. Fitted electric…


