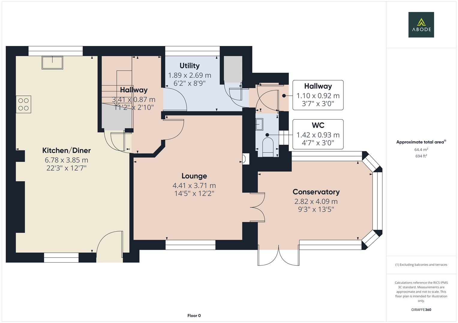
HALL
Door from the side into a hall, radiator and doors to -
CLOAKROOM
Low flush wc, wash hand basin, radiator and upvc double glazed window.
UTILITY ROOM
Fitted cupboard and work surfaces, plumbing and…
Read more...
HALL
Door from the side into a hall, radiator and doors to -
CLOAKROOM
Low flush wc, wash hand basin, radiator and upvc double glazed window.
UTILITY ROOM
Fitted cupboard and work surfaces, plumbing and space for a washing machine and space for a tumble dryer, storage cupboard, radiator and upvc double glazed window.
INNER HALL
Stairs to the first floor, radiator and doors to -
LOUNGE
Feature fireplace with ornate surround and electric fire, upvc double glazed window and a radiator. Double doors into the conservatory.
CONSERVATORY
Upvc double glazed windows and doors onto the garden and a tiled floor.
KITCHEN DINER
The kitchen area offers solid wood fitted wall mounted, base and drawer units with work surfaces and a sink unit. Fitted extractor with space for a cooker under, space for a fridge freezer, display cabinets, upvc double glazed window and open through to the dining area.
The dining area offers under stairs storage cupboard, radiator and upvc double glazed window and door onto the garden.
FIRST FLOOR LANDING
Upvc double glazed window, door to stairs up to to the second floor and doors to -
BEDROOM 1
Upvc double glazed window overlooking the garden, radiator, walk in wardrobe and door to -
EN SUITE
Enclosed shower, wash hand basin, low flush wc, radiator and upvc double glazed window.
BEDROOM 2
Upvc double glazed window overlooking the garden, radiator.
BATHROOM
Panel enclose bath, low flush wc, bidet, wash hand basin, airing cupboard, radiator and upvc double glazed window.
SECOND FLOOR
BEDROOM 3 and OFFICE
Converted loft offering 2 areas perfect for a bedroom and office. Eaves storage cupboards, radiators and upvc double glazed windows.
OUTSIDE
Ample parking to the front and timber shed/workshops. Side garden with seating areas. The rear garden offers a good side lawn with established borders. Rear access for a caravan or suchlike if required.
Read less