Blythe Bridge Road, Caverswall, ST11 9EA
£750,000
Brief Overview
Property Summary
**** UNIQUE FAMILY HOME SET ON A THIRD OF AN ACRE **** Beautifully presented four double bedroom property offering an entrance hall, lounge, dining room and family room/office. Fitted breakfast kitchen open through to the garden room with a log burner, utility room and a guest cloakroom. Four first floor bedrooms, en suite shower room and a family bathroom with bath and enclosed shower. The garden wraps around the property with lovely lawns and seating areas, covered hot tub area and a double detached garage. Ample parking with an in and out drive. A VIEWING APPOINTMENT IS HIGHLY RECOMMENDED.
Property Features
- DETACHED FOUR BEDROOM FAMILY HOME
- HALL & CLOAKROOM
- LOUNGE & DINING ROOM
- FAMILY ROOM/OFFICE & GARDEN ROOM
- FITTED KITCHEN & UTILITY ROOM
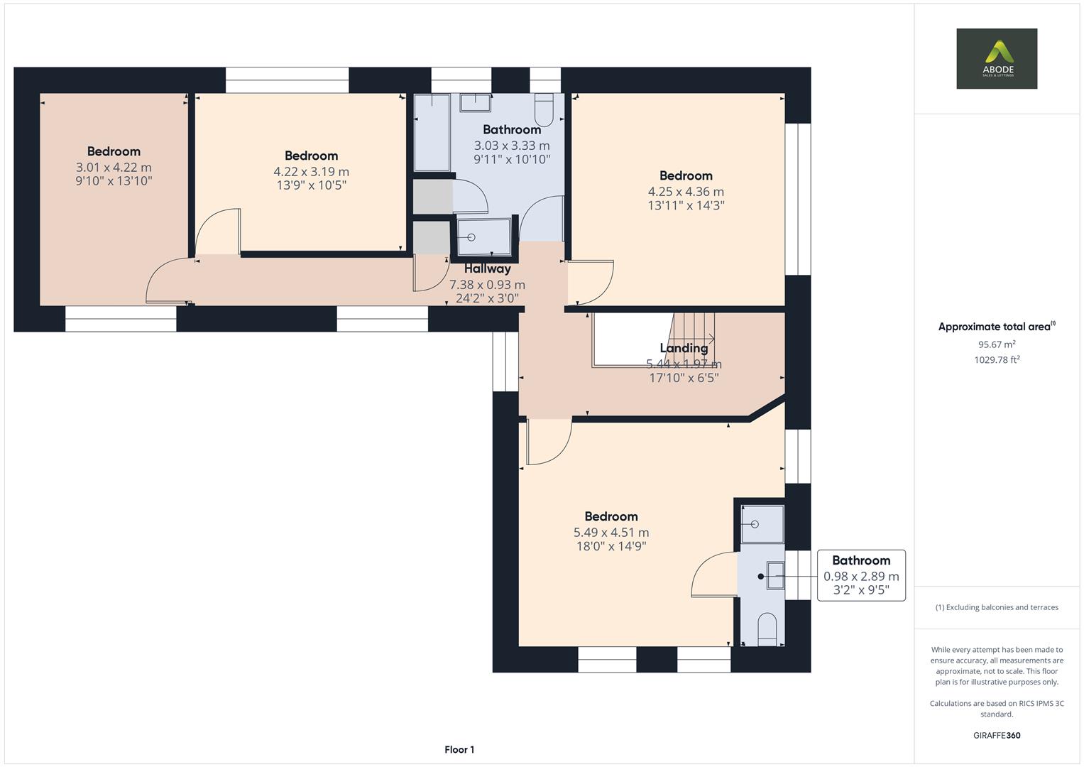
- FOUR BEDROOMS
- BATHROOM & EN SUITE
- 1/3 ACRE PLOT
- DOUBLE GARAGE
- AMPLE PARKING
Full Details
HALL
Entrance door into the hall with stairs to the first floor, tiled floor, radiator, double glazed window and storage cupboards.
LOUNGE
Feature exposed brick fireplace housing a gas stove, two…


