Belvedere Road, Burton-on-Trent

4

2
Brief Overview
Property Summary
A Victorian four bedroom semi detached home, situated within a popular residential location, having good access to local amenities and transport links. The property benefits from newly fitted windows and doors and off road parking to the rear aspect, four well proportioned bedrooms, two reception rooms, good sized kitchen, downstairs bathroom and first floor shower room and a large laid to lawn garden. View is highly recommended strictly via appointment only.
Full Details
Accommodation
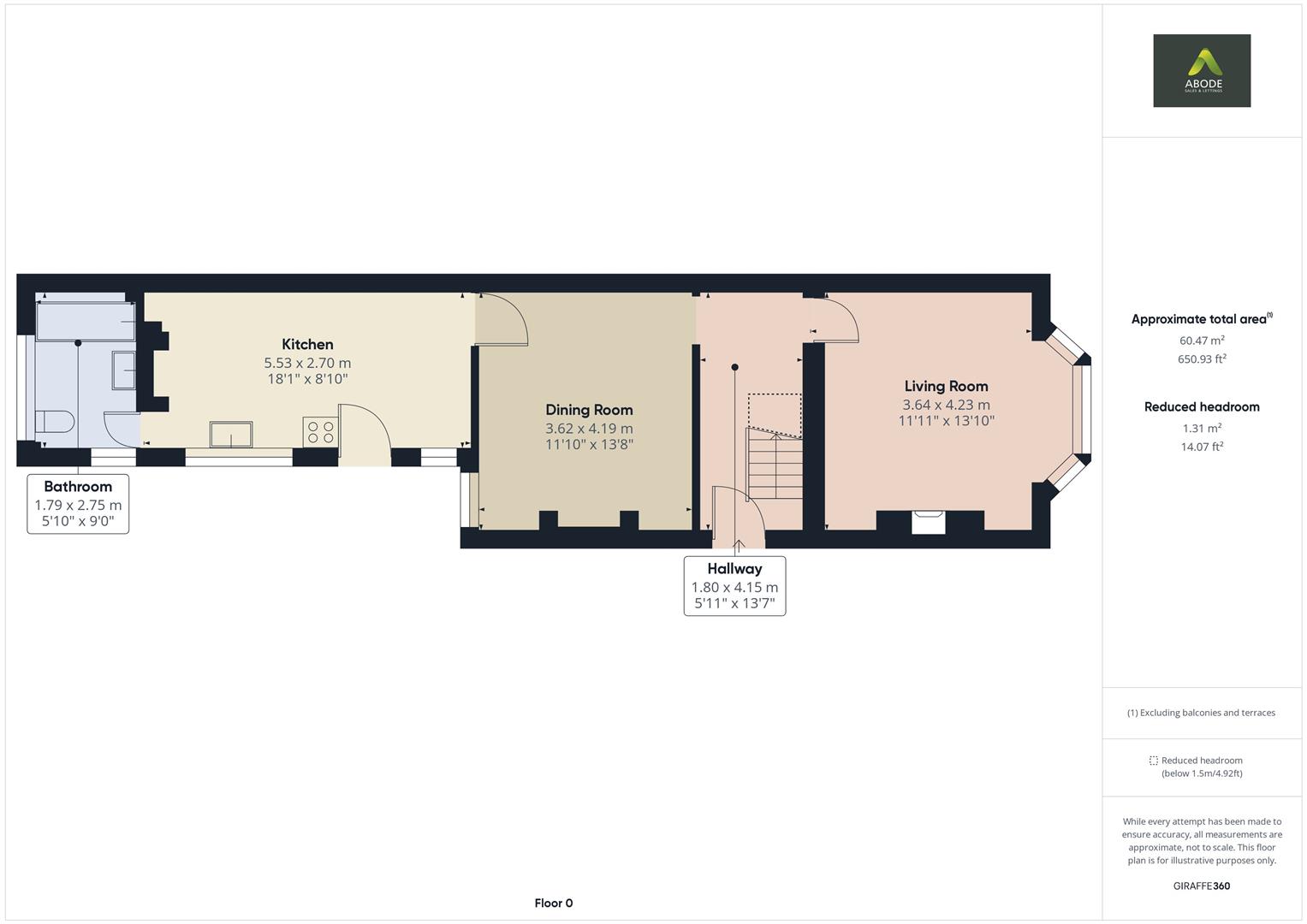
The lounge features a bay window with a view to the front aspect. It also includes a stylish log burner with a surround.
The dining room has a window with a view to the rear aspect, a…
Read more...
Accommodation
The lounge features a bay window with a view to the front aspect. It also includes a stylish log burner with a surround.
The dining room has a window with a view to the rear aspect, a feature fireplace and a door leading to the kitchen.
The kitchen has a window to the side aspect, a door leading to the garden, and a range of wall and base units with work surfaces. It also includes an inset sink and drainer, integrated gas hob and electric oven, and space for essential appliances.
The bathroom has a frosted window to the rear aspect and a white suite comprising a bath, WC, and hand wash basin.
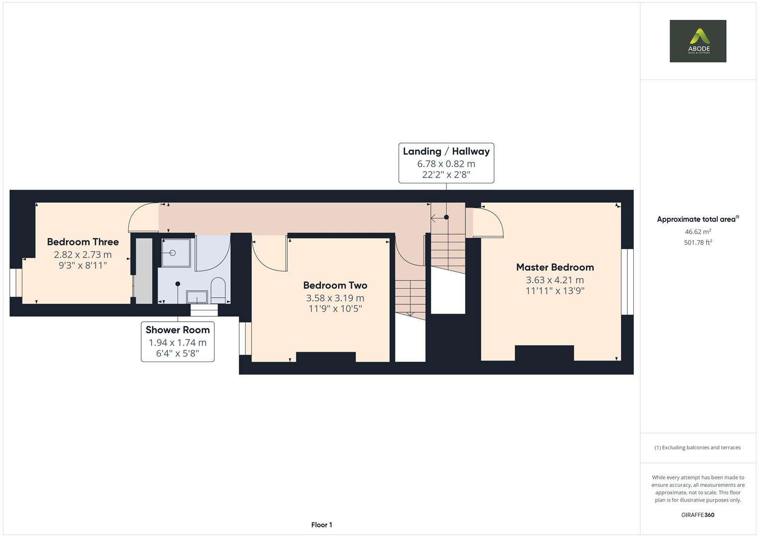
On the first floor, bedroom two has a window to the front aspect, carpet flooring, and a central heating radiator.
Bedroom three has a window to the rear aspect, a feature fireplace, carpet flooring, and a central heating radiator.
Bedroom four has a window to the rear aspect, fitted wardrobes, carpet flooring, and a central heating radiator.
The shower room has a frosted window to the side aspect and a white suite comprising a corner shower, WC, and hand wash basin.
On the second floor, the master bedroom has two Velux windows, carpet flooring, and eaves storage.
The garden features a lawn and fenced boundaries, which leads to the off street parking.
Read less
Property Location