Spring Lane, Swannington, Leicestershire
£625,000
Brief Overview
Property Summary
A rare opportunity to register your interest ahead of the launch of these exceptional executive homes.
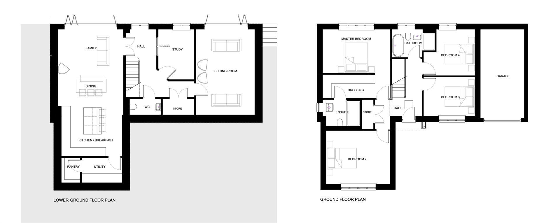
Tucked away along a private lane, this exclusive development comprises just two bespoke, meticulously crafted four-bedroom detached residences, each offering approximately 2,100 sq ft of beautifully designed living space. Located in the historic and highly sought-after village of Swannington, the homes have been thoughtfully positioned to make the most of the surrounding countryside, delivering a peaceful and picturesque setting. Each property is completed with the reassurance of a new-build warranty.
Internally, the homes boast an impressive high-specification open-plan kitchen and dining area with bi-fold doors, a separate sitting room, study, utility room, and guest cloakroom. There are four generously sized bedrooms, including a superb principal suite with dressing room and en-suite, alongside a stylish family bathroom.
Further benefits include an air source heat pump, underfloor heating, CCTV, professionally designed landscaping, a garage, and parking for two vehicles.
Tucked away along a private lane, this exclusive development comprises just two bespoke, meticulously crafted four-bedroom detached residences, each offering approximately 2,100 sq ft of beautifully designed living space. Located in the historic and highly sought-after village of Swannington, the homes have been thoughtfully positioned to make the most of the surrounding countryside, delivering a peaceful and picturesque setting. Each property is completed with the reassurance of a new-build warranty.
Internally, the homes boast an impressive high-specification open-plan kitchen and dining area with bi-fold doors, a separate sitting room, study, utility room, and guest cloakroom. There are four generously sized bedrooms, including a superb principal suite with dressing room and en-suite, alongside a stylish family bathroom.
Further benefits include an air source heat pump, underfloor heating, CCTV, professionally designed landscaping, a garage, and parking for two vehicles.
Full Details
Note
Please not the images are for illustrative purposes


