Shelley Avenue, Burton-On-Trent DE14 2QZ
£950 pcm
Brief Overview
Property Summary
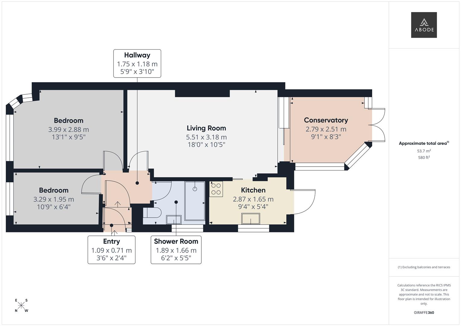
Set in a peaceful cul-de-sac, this two-bedroom semi-detached bungalow offers great potential for tenants seeking a comfortable home. With gas central heating, uPVC double glazing, and a flexible layout, it’s ideal for professionals, small families, or downsizers.
The property features a welcoming entrance, a bright lounge/diner with a central fireplace leading to a conservatory, and a kitchen with ample storage and a Worcester combi boiler. There are two bedrooms and a shower room, plus loft access for additional storage.
Outside, the front garden includes a driveway and garage, while the private rear garden is low-maintenance and perfect for relaxing.
The property features a welcoming entrance, a bright lounge/diner with a central fireplace leading to a conservatory, and a kitchen with ample storage and a Worcester combi boiler. There are two bedrooms and a shower room, plus loft access for additional storage.
Outside, the front garden includes a driveway and garage, while the private rear garden is low-maintenance and perfect for relaxing.
Property Features
- Located in a peaceful cul-de-sac.
- Two-bedroom semi-detached bungalow.
- Ideal for tenants, professionals & small families
- Gas central heating throughout.
- UPVC double glazing installed.
- Flexible interior layout.
- Lounge/diner with central fireplace leading to a conservatory.
- Kitchen with ample storage space.
- Two bedrooms and a shower room.
- Front driveway and low-maintenance private rear garden.


